Jul 22, 2025
Roofer to the rescue
Roofs help keep the rain off our heads and the sun off our backs. They can also lead to exemplary community service, as one Navarre woman found out.
For the past few months, Barbara Morgan has had a string of bad breaks.
Jul 21, 2025
Owner of Mexican restaurants in Pace, Gulf Breeze charged with fraud by feds
The owner of several Mexican restaurants in Northwest Florida and Alabama has been ar-rested on a slew of charges related to the mishandling of COVID-19 era federal loans.
Cesar Campos-Reyes, 52, is charged with four counts of bank fraud, four counts of wire fraud and one count of money laundering. According to the U.S. Attorney’s Office for the Middle District of Alabama, the charges stem from an alleged scheme involving federal program fraud.
Jul 21, 2025
Topgolf adds second location within hours drive of Navarre
Topgolf, a golfing and entertainment venue chain, has opened a new location on Panama City Beach. Located in Pier Park City Center, the two-level venue is the 10th Topgolf location in Florida.
Ground broke on the project in 2024, and the location officially opened June 27, 2025. The St. Joe Company owns and manages the site on which Topgolf was built.
Jul 15, 2025
Made from scratch
At the Eatery, a Midway-area food truck venue, you’ll find food trucks with burgers, Asian cuisine, tacos and ice cream. You’ll also find charcuterie.
Cutie Patootie Charcuterie and Sweets, which opened in November 2024, is trying to do something new, and relatively rare, in the food truck space: create made-from-scratch, premium-quality dishes from ingredients sourced from around the world.
Jul 11, 2025
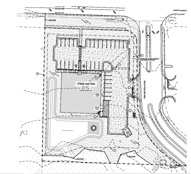
Auto parts store slated for Twin Pine Boulevard in Midway
A new business is coming to the corner of Twin Pine Boulevard in Midway.
Plans for a 7,453 square foot auto parts store have been submitted to Santa Rosa County Development Services. According to the plans, the business will carry the O’Reilly brand.
Jun 27, 2025
Navarre resident looks to make new jewelry business permanent
It wasn’t that long ago that local Navarre resident Juliet Martinez was going to college to become an Emergency Medical Technician. One at-risk pregnancy later, she decided to pursue a different path: making jewelry.
Jun 23, 2025
Chairman of Navarre Beach Chamber board named one of area’s rising business stars
Andrew Rowe, a commercial banker with Synovus Bank, was recently named a member of 850 Business Magazine’s “Thirty-Under-Thirty,” a list honoring the top 30 young business owners, entrepreneurs and professionals working in Northwest Florida.
Jun 18, 2025
Michael’s acquires JOANN Fabrics’ brands
The Michaels Companies, Inc. recently announced it has completed the acquisition of the intellectual property and private label brands of JOANN, including the development of JO-ANN brands, such as Big Twist, as part of the Michaels portfolio.
In addition, Michaels is expanding its fabric, sewing, and yarn assortment, adding over 600 products across new and existing brands, including sewing and quilting supplies, fabric, yarn, specialty threads, sewing machines and more.
Jun 16, 2025
Crumbl Cookies franchisee eyes Navarre for location
Navarre may soon be getting a Crumbl Cookies food truck.
Jun 13, 2025
Krafty Kids Expo gives children opportunity to earn, save money
While other children are earning allowances through household chores or yardwork, a group of just over a dozen children were earning money from strangers earlier this month by selling products, from lemonade to crochet stuffed animals to bracelets.
The children are young entrepreneurs and were at Pik-Itz’s Saturday morning market June 7 for the Highway 87 Krafty Kids Expo.
















