Please ensure Javascript is enabled for purposes of website accessibility
Skip to main content
Advertisement

Thank you for supporting journalism at your local newspaper. This article is available exclusively for our subscribers, who help fund our work at Navarre Press.


Business

Auto parts store slated for Twin Pine Boulevard in Midway

| Staff Reporters

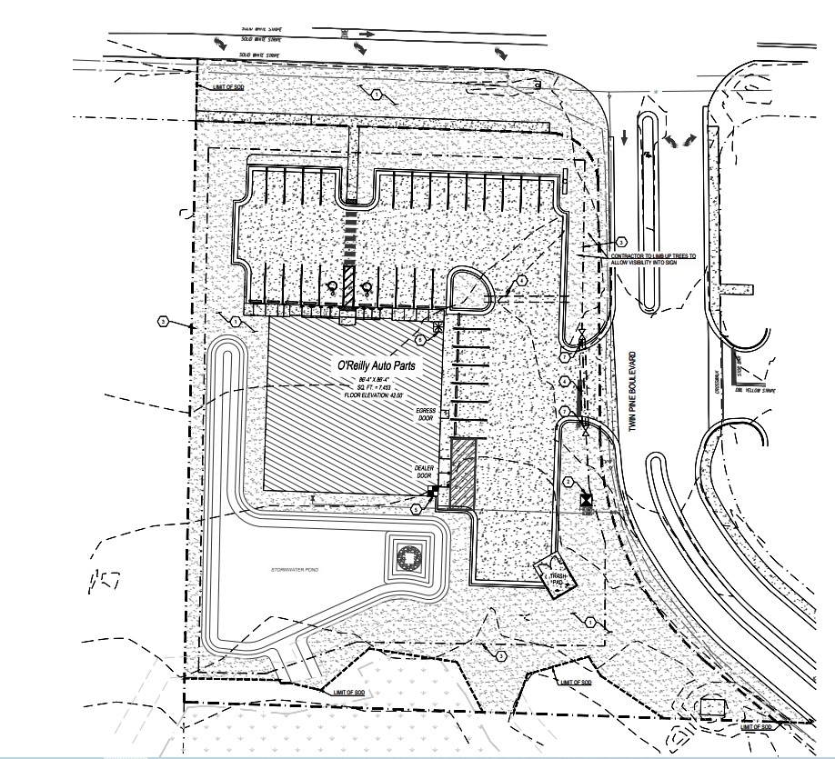
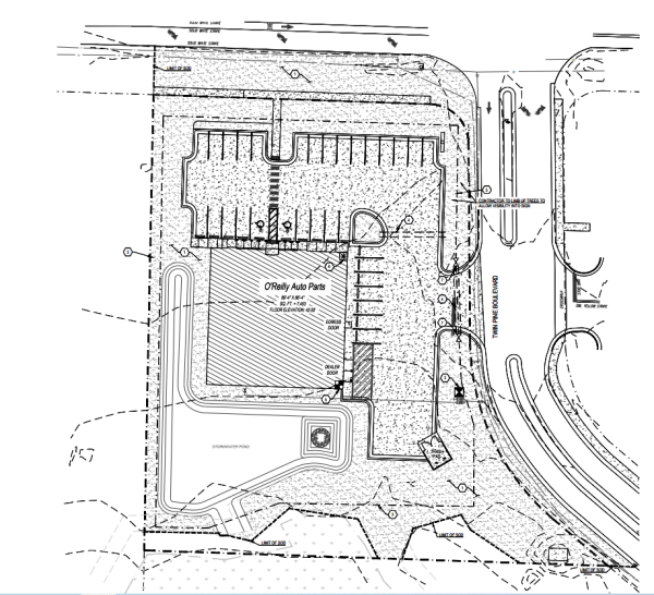
A new business is coming to the corner of Twin Pine Boulevard in Midway.

Plans for a 7,453 square foot auto parts store have been submitted to Santa Rosa County Development Services. According to the plans, the business will carry the O’Reilly brand.

 

The remainder of this article is available only for our website subscribers, who help fund our mission of keeping you updated on news you want and need to know. You can become a subscriber for as little as $5.67 a month.